vitAcoustic Specifications, Room Acoustics Data and Acoustic Calculators

Akustikmaßnahmen - flexiconference in Schulungsräumen - DSC Software AG

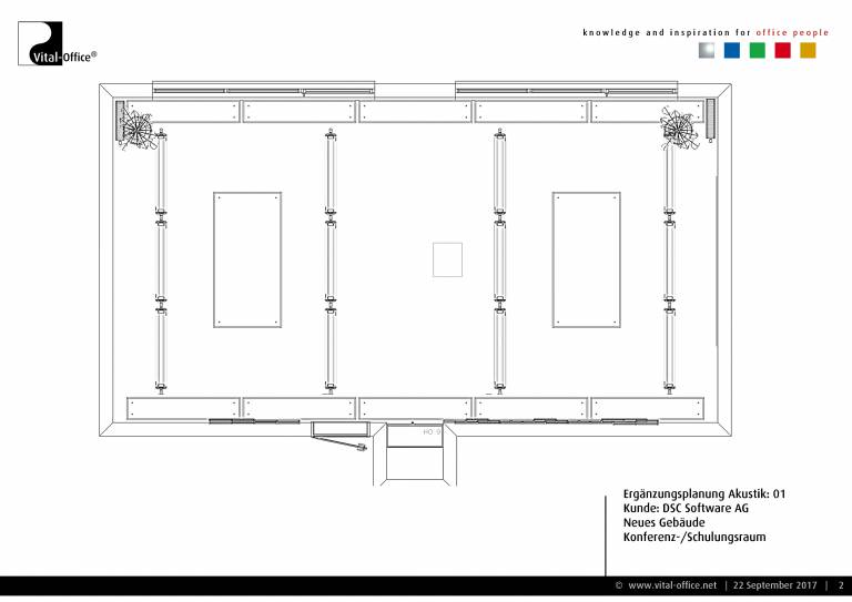
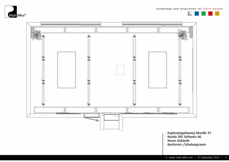
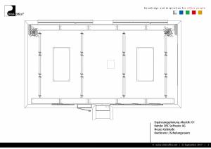
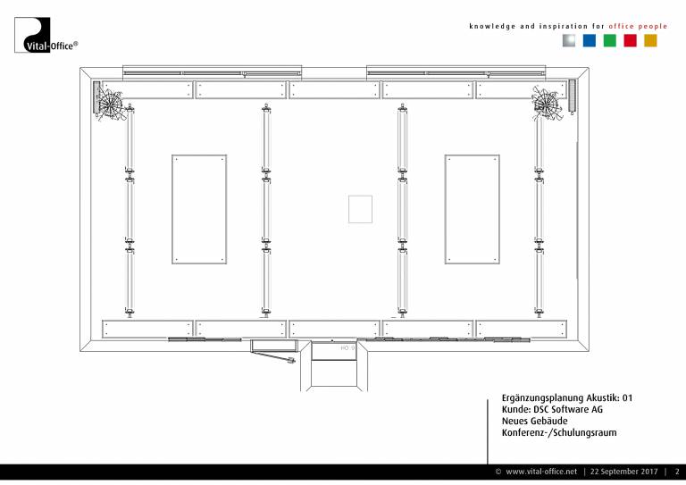
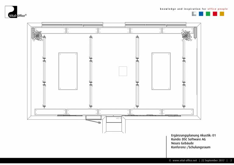
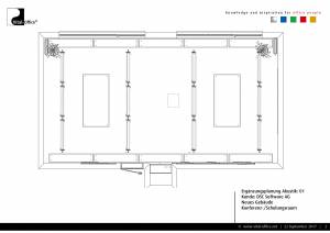
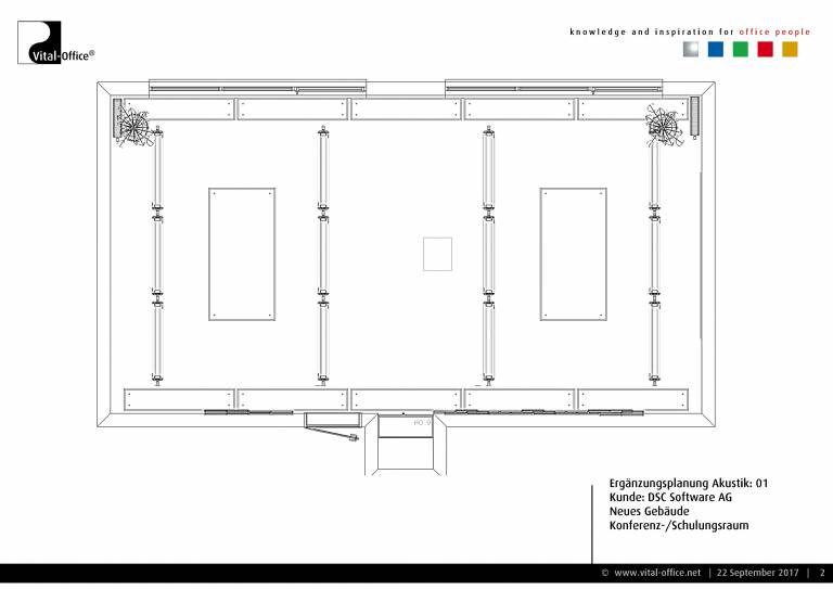
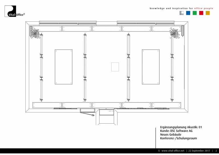
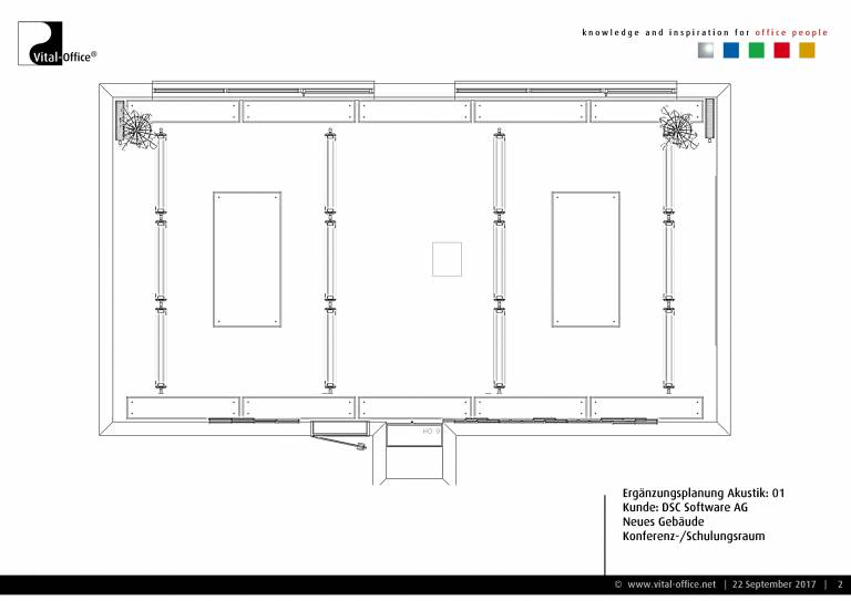
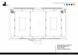
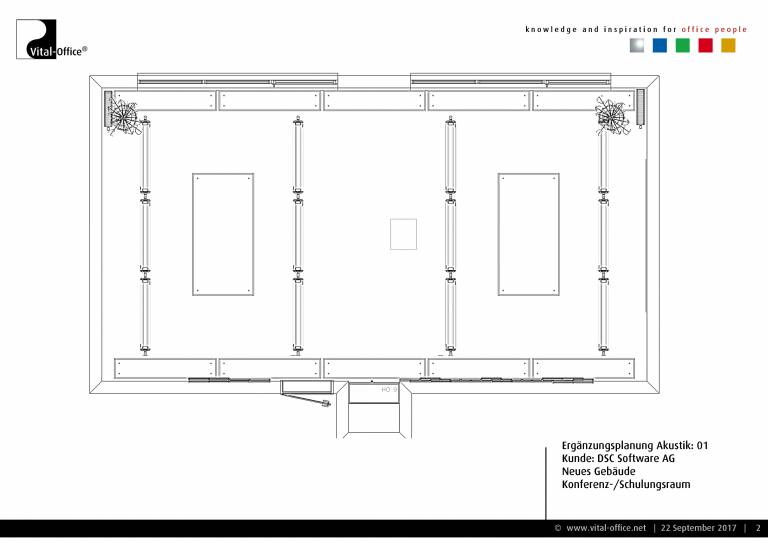
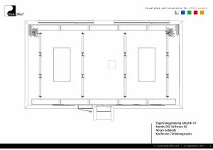
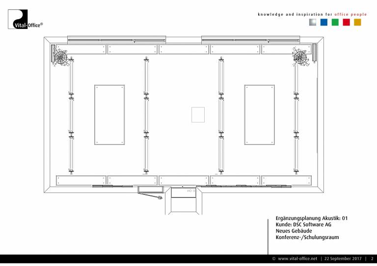
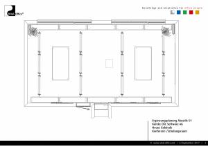
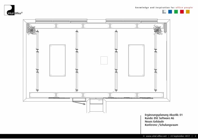
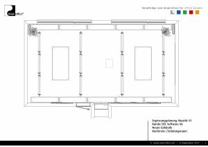
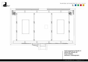
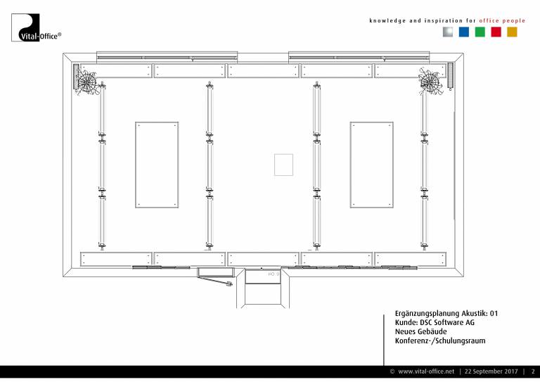
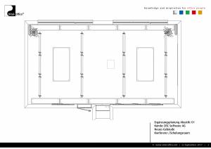
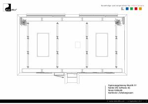
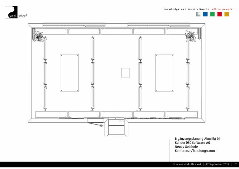
Ein schon langjähriger Kunde, der uns immer wieder in sehr positivem Sinne fordert und Steine ins Rollen bringt, die uns letztlich gemeinsam einen großen Schritt nach vorne bringen. Hier ein gelungener Schulungsraum mit flexiconference Konferenztischen, bei dem im Nachhinein noch Akustikmaßnahmen in Form von schallabsorbierenden Decken- und Wandelementen geplant wurden. -> Akustikrechner nach DIN 18041 mit Berechnung dieses Konferenzraumes

Read 20021 times
(2 votes)
Written by 20 November 2025 - 01:05:53

Grundlage für Raumakustik ist die DIN 18041. Eine kurze Zusammenfassung finden Sie hier: DIN 18041 Hörsamkeit in Räumen. Bei der Berechnung wurde festgestellt, dass wir an der hinteren Wand auf jeden Fall etwas hinzufügen müssen. Die hintere Wand, gegenüber dem Sprecher sollte absorbieren. Die vordere Wand und Teilbereiche der Decke müssen zur Sprachübertragung in den Raum hinein reflektierend bleiben! Die Änderung ist im 360 Grad Panoramabild enthalten. Da in Ecken ein größerer Schalldruck entsteht, haben wir zuerst die Eckbereiche der Decke seitlich und hinten mit jeweils 400mm breiten Deckensegeln bestückt. Zusätzlich haben wir 2 größere Deckensegel 2400x1200mm plaziert. An den Wänden wurden die 3d-frames als umlaufendes Band mit schlichter Grundfläche und Akzenten in den Firmenfarben gewählt. In der Berechnung wurden noch Tiefenabsorber hinzugefügt, die wir derzeit jedoch nicht geplant und angeboten haben. Wir schlagen hierzu vor, die normalen Maßnahmen erst zu versuchen und falls es unerwarteterweise doch zu einem dumpfen Brummen kommen sollte, können diese jederzeit nachgerüstet werden.

Die Farben sind schlicht, an die Firmenfarben angepasst. Wir haben jedoch 19 Farben zur Auswahl. Siehe: vitAcoustic Datenblatt

Downloads:
 
flexi-conference_deutsch-HD.mp4.0002
flexi-conference_deutsch-HD.mp4.0002

Flexibel, modern & effektiv! Flexiconference your event space optimized:

Flexiconference ist ein von Vital Office entwickeltes Konzept um den hohen Ansprüchen an moderne und

...
Date-133Friday, 26 August 2016 13:19
Language-133  German
File Size-133 49.28 MB
Download-133 7,842
 

 
Vital-Office-flexiconference_SRA3_DE-EN-CN-screen_Seite_01
Vital-Office-flexiconference_SRA3_DE-EN-CN-screen_Seite_01

Flexiconference your event space optimized:

Flexiconference ist ein von Vital Office entwickeltes Konzept um den hohen Ansprüchen an moderne und flexible Konferenzräume gerecht zu

...
Date-160Saturday, 27 August 2016 21:05
Language-160  Multilanguage
File Size-160 5.47 MB
Download-160 7,060
 

 
Vital-Office-flexiconference_SRA3_DE-EN-CN-screen_Seite_010
Vital-Office-flexiconference_SRA3_DE-EN-CN-screen_Seite_010

Flexiconference your event space optimized:

Flexiconference ist ein von Vital Office entwickeltes Konzept um den hohen Ansprüchen an moderne und flexible Konferenzräume gerecht zu

...
Date-161Saturday, 27 August 2016 21:10
Language-161  Multilanguage
File Size-161 31.48 MB
Download-161 7,120
 

Flexiconference programm overview

Program overview Flexiconference

Downloads (please register to download brochures and price lists)

 

Flexiconference FormFit mit Varitable

pt7v1607r08-mck-3dh - Kopie
pt7v1407r08 pt7v1607r08 pt7v1907r08 pt7v2407r08
1391x690mm 1554x690mm 1928x690mm 1403x690mm
pt7v1407r08-mck pt7v1607r08-mck pt7v1907r08-mck pt7v2407r08-mck

 

Flexiconference Varitable
pt7r08g-mcn-3d
AppleG pt7r08g Ronde pt7ro8
810x690mm 810x810mm
pt7r08g-mcn  pt7r08-mcn

 Tischplattenformen Partit Basis:

Flexiconference Partit Basis
pt7e14gr08 pt7e18gr08 pt7e14r08 pt7e18r08
1340x666m 1877x765m 1340x704mm 1877x811mm
pt7e14gr08-mcn pt7e18gr08-mcn  pt7e14r08-mcn pt7e18r08-mcn

 Tischplattenform Partit Form-Fit:

Flexiconference FormFit
pt7e21i9-mck-3d
pt7e21i9
2100x793mm
pt7e21i9-mck-4 

 

Oberfläche:

Dekor
ACKW kristallweiß AL alu strichmatt AC Anthrazit DAH Ahorn hell
ACKW AL AC DAH
DBH Birne hell UGW grauweiß DBC Birne classic  
DBH  UGWauslaufend DBCauslaufend  

 

Massivholz
NBAH Bambus hell NBAC Bambus coffee
NBAH NBAC

 

Echtholz Furnier
NBAH Bambus hell NBAC Bambus coffee NAH Kanad. Ahorn NBI Schw. Birne NKI Europ. Kirsche
NBAH NBAC NAH NBI NKI
NEI Eiche NBU Buche NEN Esche NES Esche sw NEI Eiche sw
NEI NBU NEN NEIS NES

 

Linoleum
L4157 Pearl L4140 Jeans L4164 Salsa L4023 Nero xxx
L4157 L4140 L4164 L4023 xxx

Plattenoptionen:

Kante
C- Profil B- Profil T- Profil 3- Profil
c-profil b-profil t-profil 3-profil

 

Klapptischgestell:

Klapptischgestelle für verschiedene Tischlängen
pt7v1607r08-mck-3d
bcbft2-10 bcbft2-12 bcbft2-14 bcbft2-16
für ca. 1400mm für ca. 1600mm für ca. 1800mm für ca. 2000mm
1050x600mm 1250x600mm 1450x600mm 1650x600mm

Klapptisch 01
Klapptisch 02
Blende für Klapptischgestelle für verschiedene Tischlängen
bcbft2-10-mp bcbft2-12-mp bcbft2-14-mp bcbft2-16-mp
pt7v1607r08-mck-3dh

 

Säulenfuss-Gestelle:

c-style Säulen-Gestelle (Anzahl 2)
pt7v1607r08-mcn-3d
PTB.RFE-N-CR PTB.RFE-N75 PTB.RFE-N75 PTB.RFE-W-AL
680-820mm 750mm 750mm 750mm

ptb.rfe-n-cr

auslaufend

ptb.rfe-n-cm ptb.rfe-n-cr ptb.rfe-w-al

Bodenplatte in Graualuminium oder Schwarz

Größe abhängig von Tischform

Steh- Sitz Säulenfuss-Gestelle mit Gaslift und Motor:

c-style Säulen-Gestelle (Anzahl 2)
PTB.RFE-S-CM PTB.RFE-S-CR PTB.RFE-M-AL DC500_WC DC500_SC
670-1090mm 670-1090mm 630-1435mm 700-1080mm 700-1080mm
ptb.rfe-n-cm ptb.rfe-n-cr ptb.rfe-m-al-lowptb.rfe-m-al-high dc500pes-wc dc500pes-sc

Bodenplatte in Graualuminium oder Schwarz

Größe abhängig von Tischform

Bodenplatte in Chrom

 

Einzelfuss-Gestelle:

e-style Gestelle ø55 (Anzahl 4)
pt7v1607r08-mcf-3d
BCB100--F-SW BCB100--F-AL BCB100--F-CM BCB100--F-CR BCB100--V-CM BCB100--V-CR
680-760mm 680-760mm 680-760mm 680-760mm 680-900mm 680-900mm
bcb100--f-ac bcb100--f-al bcb100--f-cm bcb100--f-cr

bcb100--v-cm

auslaufend

bcb100--v-cr

auslaufend

 

 

 

Leave a comment

Make sure you enter all the required information, indicated by an asterisk (*). HTML code is not allowed.




Related items

German furniture manufacturing

Vital Office GmbH

 D-75334 Straubenhardt, Holzbachtal 204

  +49 7248 93566-90

  +49 7248 93566-97

  [email protected]

  www.vital-office.de

 

International Export

Vital Office Hongkong Limited

 Rooms 05-15,13A/F, South Tower, World Finance Centre, Harbour City, 17 Canton Road, Tsim Sha Tsui, Kowloon, Hong Kong

  [email protected]

  www.vital-office.net

Chinese furniture manufacturing

Vital-Office Shanghai Co.,Ltd

 上海新饰力办公用品有限公司

  [email protected]

  www.vital-office.cn

 Wechat ID: Vital-Office

Notice

We changed to our new Portal. Many content still needs to be copied to this new Portal. For your convenience, you can access the content of our old internet pages through the link below.

Deutsch English (UK) Simplified Chinese www.vitaloffice.net (-09.2014)

All prices are EXCLUDING VAT.